当前位置:潜水推流器 > GSHP800回转耙式格栅清污机

产品简介:
GSHP800回转耙式格栅清污机是一种可以连续自动清除流体中各种形状的杂物,以固液分离为目的装置,它可以作为一种专用设备广泛地应用于城市污水处理、自来水行业、电厂进水口,同时也可以作为纺织、食品加工、造纸、皮革等行业生产工艺中必不可少的专用设备,是目前我国进的固液分离设备,回转式机械格栅又称格栅除污机。
用途:
回转式细格栅除污机用于城市污水处理厂、自来水厂、雨水泵站等进水渠,拦截水中的漂浮物,保证水泵和后续工序的正常运行。
产品特点:
1、由于除污机的栅条放置于齿耙牵引链的中间位置(其他机械格栅置于牵引链之下),改变了齿耙在清捞过程中的运动方向(与其它格栅相反),避免把硬物带入底部把齿耙及牵引链卡死;
2、在减速机输出轴端的链轮盘上安装了过载安全保护装置,以避免因意外原因过载而损坏设备;
3、由于格栅机回转链配带多个除污齿耙,使得除污效率高,清污彻底。
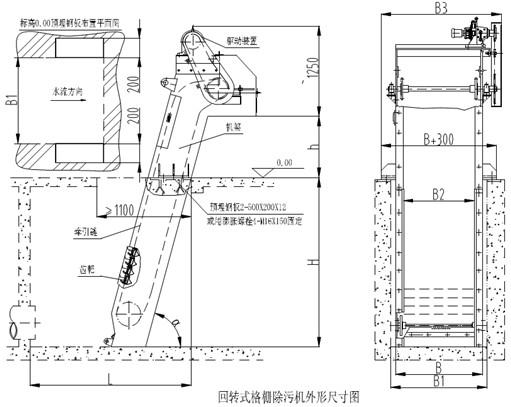
结构及工作原理:
主要由驱动变速装置、机架、主轴、栅条、托渣板、齿耙及牵引链组成。在电动机的驱动下,通过减速机减速后,带动链轮与链条运动,固定在回转链条上除污齿耙链条在栅后运动到底部, 经过导轮后翻转到栅前迎水面的位置继续运动插入固定栅条的间隙中上行,把栅前拦截的污物提升带出水面,并随着链条的运动到出渣口处自动翻转,污物自卸到格栅后的输送机或渣桶中,完成除污过程,液体则通过栅条的栅隙流过, 整个工作状态连续循环进行。
外形安装工艺
主要技术参数